作為近年來酒店行業的“新物種”,智慧酒店早已不再陌生。尤其是在疫情防控進入常態化的今天,智慧酒店已經成為商旅人士安心入住的代名詞。在居住體驗與降本增效的雙重賦能下,酒店智慧化改造如火如荼。
據相關資料統計,89.8%的飯店集團在2020年增加或維持了科技創新投入比例,多數資訊化系統和智慧技術應用均有增加。全國主要城市的酒店客房智慧化改造市場規模已超1000億元,且每年智慧酒店數量保持20%左右的增長。
可見,酒店智慧化改造的必要性已經毋庸置疑,本期方案館為各位分享一份《迪士尼溫泉度假酒店智慧化設計與實施方案》,需要的可以收藏下載,以備不時之需。
方案獲取:
迪士尼溫泉度假酒店智慧化設計與實施_智慧化建築方案_河姆渡方案館
目錄
智慧化總體設計
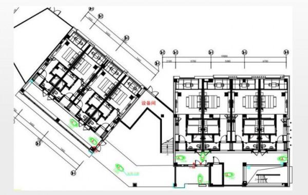
綜合佈線系統
1號樓大廳佈線點位設計:
前臺:資料語音點
辦公室:資料語音點
電梯廳:電視點位
大廳:無線AP點位
4號樓辦公室佈線點位設計:
標準層客房、公共區域佈線點位設計:
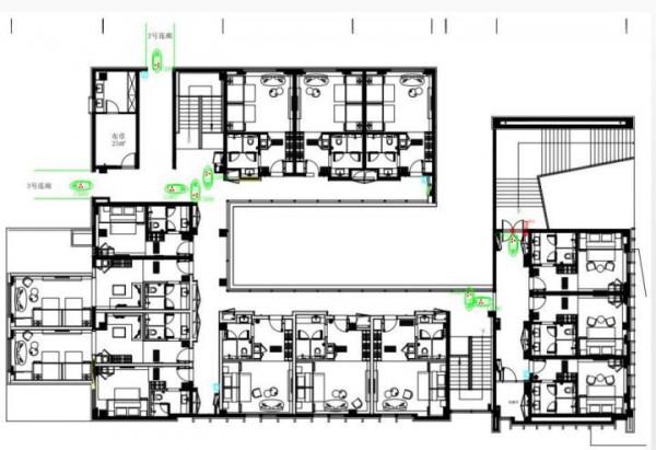
監控子系統
本次設計攝像機共計198個,主要在主次出入口、 地面主要道路、客房通道、樓棟出入口、樓梯口、 連廊通道、下客區、電梯轎廂、廚房等區域設定點位。樓棟出入口攝像機採用人臉抓拍功能、主次出入口採用車牌抓拍攝像機,下客區採用人臉抓拍、全景攝像機。
門禁子系統
本次設計門禁25個,主要覆蓋在樓棟出入口、重要機房。
安防系統
室外安防點位設計
室外安防點位設計:
1號樓安防點位設計
標準一層安防點位設計:
標準二層安防點位設計:
標準客房點位設計
智慧燈光系統
實現照明控制智慧化
美化服務環境吸引賓客光臨
提高管理水平,減少維護費用
可觀的節能效果
延長燈具壽命
在酒店大堂前臺及餐廳收銀處配置智慧5.7寸彩色觸控式螢幕,使大堂的燈光得到智慧化的管理,可以恰到好處的將自然光與室內照明得到完美的結合。所有的場景模式都是透過調節一組迴路的亮暗,使其搭配成多種不同的燈光效果。將上述的這些場景分別儲存在智慧控制面板的各個按鍵中,當有需要時可方便地透過按動其中一個按鈕呼叫所需的場景狀態。
宴會廳系統組成
LED大屏、擴聲
戶內全綵P2.5LED屏: 顯示屏淨尺寸:4.8m*2.72m=13.056m² ,屏體解析度:2304*1280
2只線性主擴聲音柱,壁裝在舞臺兩側,4只輔助音柱採用壁裝方式,舞臺左右兩側超低頻音箱
配置4只無線手持話筒滿足主持人發言和流動發言使用,無線話筒天線全部外引到舞臺,保證訊號接收的可靠性。
舞臺前方配置5臺影視燈,300W 可調色溫LED平板柔光燈,0.8米-1.2米佈置一個,自舞臺中間頂部正面向舞臺投射光,作為表演區正面主光,主要用於照亮舞臺前部表演區,對舞臺上的表演者起到正面照明的作用,供人物造型用或使舞臺上的物體呈現立體效果。效果燈在舞臺上空每隔1.2M-2.0M左右設定效果燈,燈具吊掛在燈吊杆下邊,可隨機頻閃,脈衝頻閃,同步非同步頻閃,單色、混色溫頻閃。RGBW(紅綠藍白)線性混色,1670萬種顏色(0-100%飽和度可調)。其作用是滿足宴會廳日常活動場景的需求。
專案實際實施
1、安防核心交換機選擇
2、樓層裝置間
3、建築無法滿足安裝要求
4、系統對接
5、各點位定位
方案獲取:
